Zum 01.04.2024 wird eine geräumige Vierzimmerwohnung im Dachgeschoss in bester Lage in Gerlingen frei.
Zur Wohnung gehört eine großzügige Loggia mit südwestlicher Ausrichtung. Die Küchenzeile kann nach Absprache von den Vormietern übernommen werden. Haustiere sind nicht gestattet.
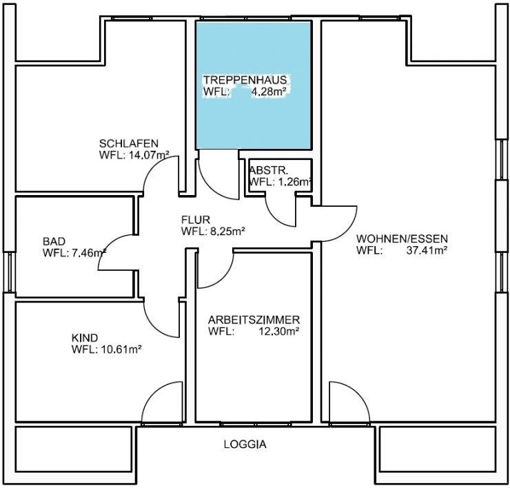
Es gibt nur diese eine Wohnung im Dachgeschoss, daher haben Sie die ganze Etage exklusiv zur Verfügung. Dementsprechend können Sie den Flur vor der Wohnung auch bspw. zum Aufstellen einer Garderobe nutzen. Außerdem bieten ein Abstellraum in der Wohnung und ein weiterer abschließbarer Kellerraum viel Abstellfläche. So bleibt viel echter Wohnraum, den sie uneingeschränkt nutzen können.
Insbesondere, wenn Sie beruflich viel unterwegs sind, liegt diese Immobilie ideal. Das Autobahnkreuz Olpe- Süd mit Anbindungen in alle Himmelsrichtungen erreichen Sie in zwei Minuten. Nach Feierabend ersparen Ihnen der frisch neu gebaute Nettomarkt und die Bäckerei auf dem Nachbargrundstück weite Wege.
Inklusive Heiz- und Betriebskosten sowie zwei Stellplätzen wird die Wohnung für 1190€/ Monat vermietet. Dazu kommt lediglich noch der Haushaltsstrom, den Sie direkt mit einem Anbieter Ihrer Wahl abrechnen. Da ich privat vermiete, zahlen Sie keine Maklerprovision.
Ich sichere Ihnen zu: In ersten zwei Jahren des Mietverhältnisses wird es garantiert keine Erhöhung der Kalt- und Stellplatzmiete geben. Das aktuelle Mietverhältnis besteht sogar seit 2018 ohne Mieterhöhung.
Bilder der Wohnung finden Sie am Ende der Seite.
Über die gehobene Ausstattung und die besonders günstige Lage der Immobilie können Sie sich hier informieren.
Bei konkretem Interesse lassen Sie mir Ihre unterschriebenen Unterlagen zur Prüfung zukommen. Beachten Sie bitte, dass Ihre Anfrage bei unvollständigen Angaben bzw. Unterlagen nicht berücksichtigt werden kann.
Besichtigungstermine können nach Vereinbarung ab dem 22.01.24 stattfinden.
Ich bitte um Verständnis dafür, dass nicht alle Anfragen beantwortet werden können. Um die Privatsphäre der Bewohner zu schützen, kann nicht jedem Wunsch nach einer Besichtigung nachgekommen werden.
Frontseite der Immobilie:

Rückseite mit Stellplätzen und Loggia:

Wohnungsgrundriss:










